Skip to main content

News

  • Co-Living Comes to Testbed KTH

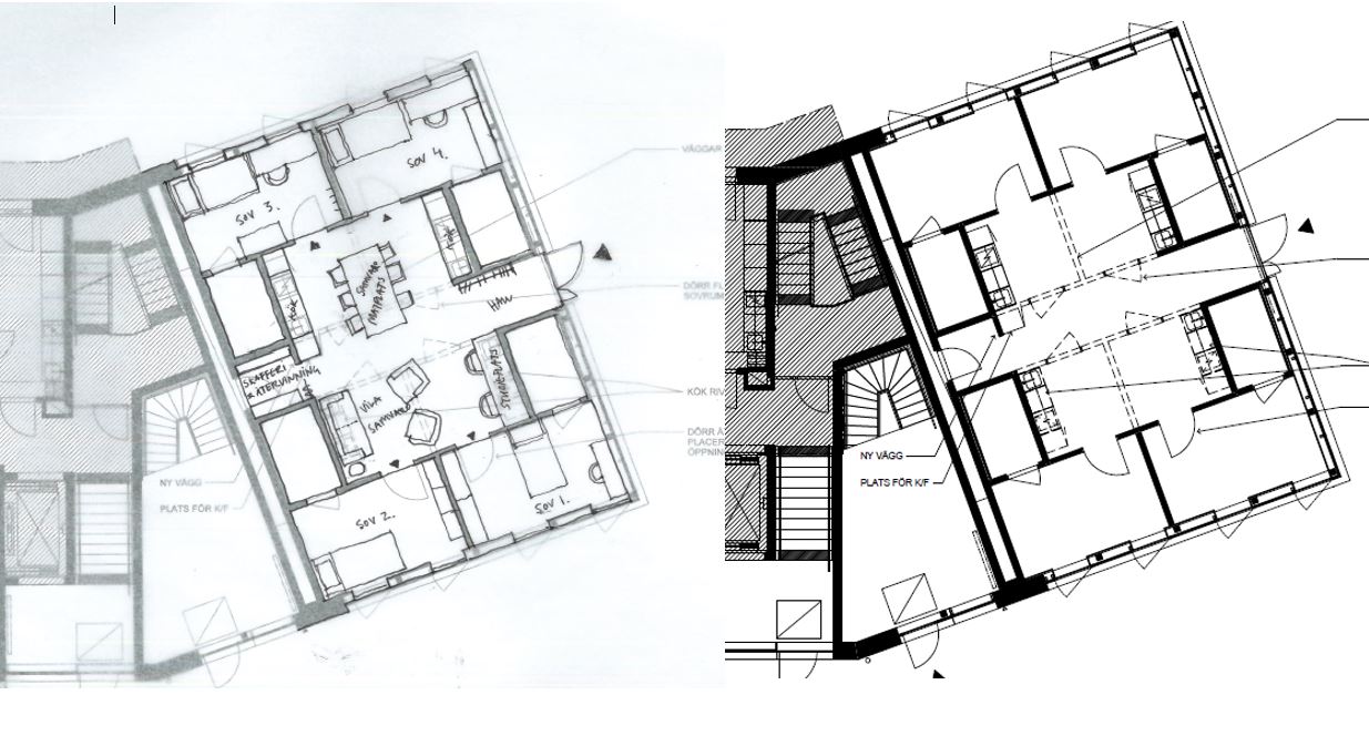
    Images of the new layout at Testbed KTH
    Testbed KTH 2.0, now co-living spaces
    Published Sep 17, 2020

    The four one-bedroom apartments at Testbed KTH have been rebuilt during the summer of 2020 into co-living units with shared kitchen and living room, and four single rooms with private bathrooms. The f...

    Read the article
  • New 3D Virtual tour at Testbed KTH

    3D Virtual tour
    Published Sep 17, 2020

    Some months ago we made it possible to walk around in our premises to get inspired, and also to find out about ongoing R&D projects. Now we aim to keep developing and expanding our 3D video tours.

    Read the article
  • KTH Live-In Lab presents at Urban Living Lab Summit 2020

    AMS Institute
    Published Jun 17, 2020

    Next Monday 22nd June, Urban Living Labs Summit 2020 organised by AMS Institute will take place digitally. KTH Live-In Lab is one of the presenters.

    Read the article
  • New article about Incentivising innovation in the construction sector: the role of consult contracts

    3D Virtual view of KTH Live-In Lab in collaboration with SISAB
    Published Jun 03, 2020

    To enable smart and sustainable buildings, contracts must encourage consultants and contractors to use their full competence. Risks and incentives must be balanced so that all parties are involved in ...

    Read the article
  • `Sustainable living at KTH Live-in-Labs' survey's results presentation.

    Published May 21, 2020

    Welcome to the 'Sustainable living at KTH Live-in-Labs' survey's results presentation.

    Read the article
  • Visit our Testbed KTH digitally!

    Published May 15, 2020

    3D Virtual tour in our Testbeds

    Read the article
  • New web section released:Datapool

    Published May 08, 2020

    KTH Live-In Lab´s Datapool is our portal to research data from our Testbeds (buildings) and research results. The idea is to collect, store and share data to accelerate innovation in the built environ...

    Read the article
  • Willem Mazzotti Pallard's PhD mid-term seminar

    Ground-Source Heat Pump system split into three main components, W. Mazzotti et al., "Deep Boreholes for Ground-Source Heat Pump : Final report," , 2018. Published Apr 30, 2020
    Published Apr 30, 2020

    Willem is a PhD canditate in the area of applied thermodynamics technology. Part of his research is about Lab-scaled experiments that is fully tested at KTH Live-In Lab.

    Read the article
  • New Project: KTH BigDataBase and Enabling Data Sharing

    Published Apr 08, 2020

    The project aims to require and implement a database that scalably manages large amounts of data with an initial focus on real estate and user data as well as data from cities

    Read the article
  • Application to live at KTH Live-In Lab

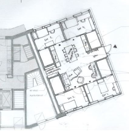
    Testbed KTH layout
    Published Apr 01, 2020

    Would you like to be part of making future smart and sustainable buildings possible? We are looking for four new residents, for the period mid August 2020 to end of May 2021.

    Read the article
  • New project at KTH Live-In Lab

    New design of Testbed KTH for the Co-Kitchen Project
    Published Mar 16, 2020

    Co-Kitchen, a joint and interdisciplinary project

    Read the article
  • New article highlighting the importance of collaboration in and between Living Labs

    AMS Institute approach about Living Labs
    Published Mar 16, 2020

    The article was written by Jonas A. Vogel , Leendert Verhoef, Per Lundqvist, Emma Sarin, Brian Goldberg and Ellen van Bueren.

    Read the article
  • New project at KTH Live-In Lab

    Published Mar 12, 2020

    Efficient integration of energy active envelop (EAE) with low-temperature heating and high-temperature cooling.

    Read the article
  • Revit model for Testbed KTH

    Revit model-Example of some views
    Published Mar 11, 2020
    Read the article
  • New research paper by Elena Malakhatka and Per Lundqvist

    Figure 1. BMS + HAS IoT Ecosystem at KTH Live-in-Lab:1-Smartphone, 2-Ouraring (wearable device), 3-Personal laptop, 4-Amazon Alexa, 5-Indoorpositioning sensors, 6-Smart lockers, 7-Smart meters, 8-Ultrasonic water meters, 9-Sensored trash bins, 10-Air quality meters (particle detectors), 11-Local weather station, 12-BIM.
    Published Feb 11, 2020
    Read the article
  • KTH Live-In Lab på SVT Play

    Rapport från 2050 på SVT Play
    Published Jan 15, 2020

    KTH Live-In Lab i den nya serien Rapport från 2020 på SVT Play.

    Read the article
  • KTH LIL at MIT

    Published Dec 05, 2019

    KTH LIL Presenting at Lunch and Learn at MIT

    Read the article
  • Conference "The Real Impact Factor – Methods for accelerating Innovation through Living Labs"

    Published Dec 02, 2019

    Last month KTH Live-In Lab held a Conference/Workshop to explore methods for accelerating innovation through the use of Living Labs.

    Read the article
  • KTH Live-In lab Demo at Digitalize in Stockholm

    Digitalize in Stockholm
    Published Dec 02, 2019

    Last week KTH Live-In Lab was at Digitalize in Stockholm, a 2-day event that allowed us to tell how our platform works and at the same time to network with research and innovation leaders and visionar...

    Read the article
  • FREE SEMINAR “IS CLEANTECH DEAD OR ALIVE?”

    Published Nov 28, 2019
    Read the article